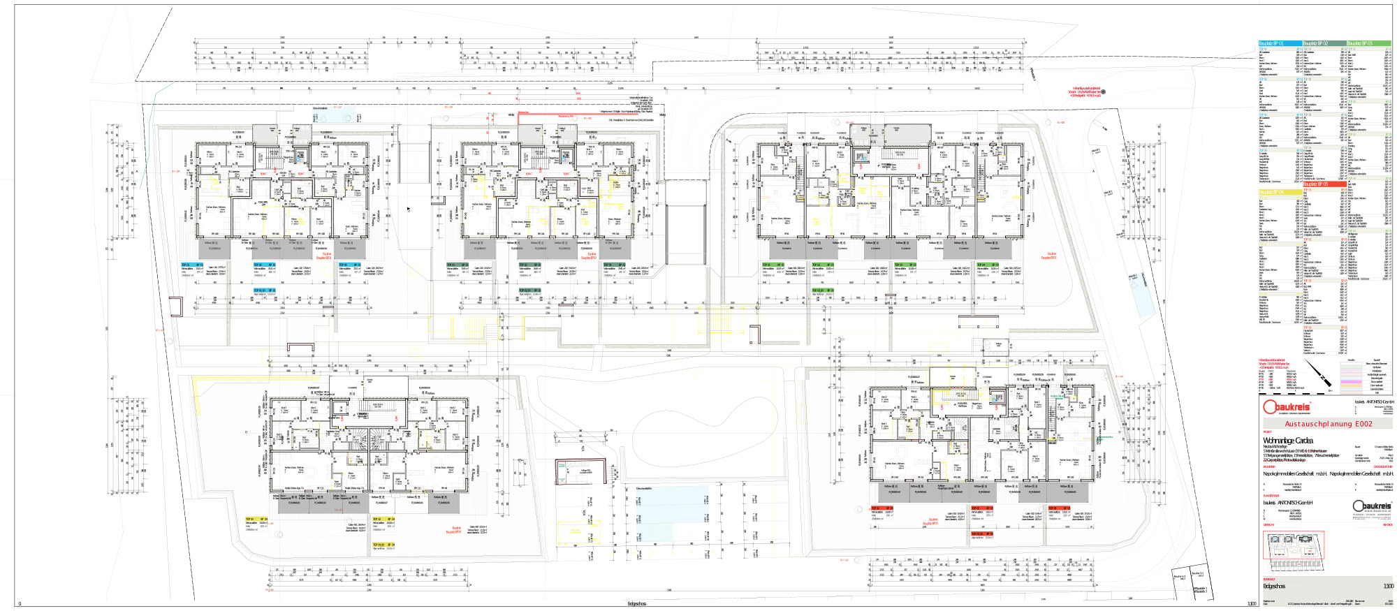
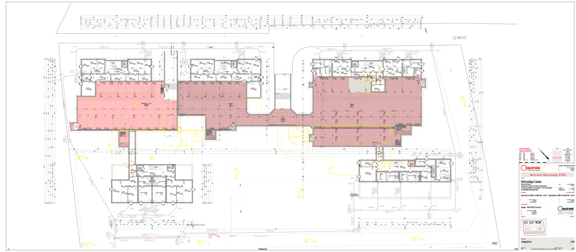
Wohnanlage Cardea
|
Kundenbewertungen
Was unsere Kunden sagen – echte Stimmen aus der Praxis.
Verlässlichkeit, Kreativität, Präzision: Unsere Auftraggeber schätzen nicht nur das Ergebnis, sondern auch den Weg dorthin. Ob Thermenumbau, Hotelzubau oder strategische Betriebsentwicklung – unsere Kunden erzählen, wie baukreis Antonitsch ihre Projekte zukunftssicher gemacht hat.
Starte jetzt deine Erfolgsgeschichte – mit uns an deiner Seite.
Ob Hotelumbau, Resortplanung oder strategische Betriebsentwicklung: Wir begleiten dich mit Erfahrung, Präzision und Weitblick – in Kärnten, Salzburg, der Steiermark und ganz Österreich. Nutze unsere Komplettlösung aus 3D-Laserscan, Architektur, Bauleitung & Tourismusberatung.
















